Back
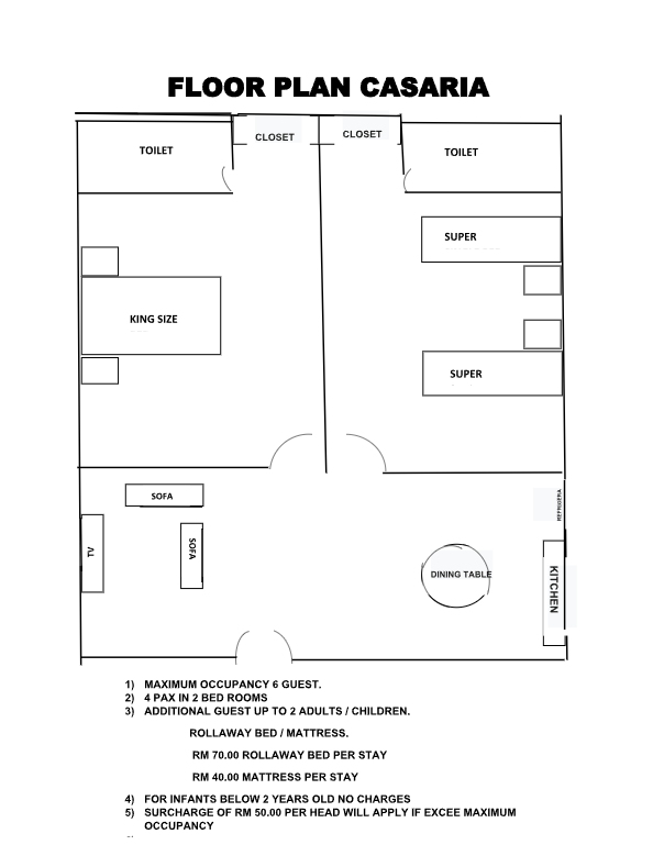
Villa Casaria
Amenities
- 2 bedrooms with attached toilets (1 bedroom with king size bed, 1 bedrooms with 2 super single beds)
- Air-conditioners and fans in bedrooms
- 2 Toilets with hot and cold running water
- Dining table for 4 persons
- Kitchenette with hood and electric plate
- Crockery, utensils and cutlery
- Refrigerator
- Electric oven
- Hall with sofa set and television
- Bath towels, shower crème and hand soap
- Ironing boards and iron and hair dryers are provided on request



